Redakce | Neděle, 06. březen 2022 |
Mhairi s Martinem bydleli původně sice v pěkném starém činžovním domě ve skotském Glasgowě, v zimě se v něm však teplota málokdy vyšplhala nad čtrnáct stupňů. Když zvažovali investici do zateplení a renovaci svého bytu, narazila Mahiri na internetu na kurz pasivního designu, kterého se nakonec zúčastnila. Vrátila se nadšená natolik, že si své vzdělání architektky rozšířila i na projektování pasivních domů a místo rekonstrukce bytu začala uvažovat o stavbě pasivního domu.
Certifikovaná pasivní dřevostavba Ostro v městečku Kippen je unikátní nejen v tom, že si ji navrhli a vlastnoručně postavili architekti sami pro sebe, ale také přístupem k použitým materiálům, které jsou vybírány velmi pečlivě a aplikovány mimořádně efektivně s cílem usnadnit likvidaci budovy na konci její životnosti a umožnit recyklaci maximálního množství použitých prvků.
Svépomocné práce na pasivní dřevostavbě zahrnovaly:
- stavbu dřevěné nosné konstrukce (dvojitá sloupková),
- instalaci izolací ve všech svislých konstrukcích,
- aplikaci vzduchotěsné vrstvy,
- instalaci klempířských prvků,
- truhlářské práce,
- položení podlah,
- montáž sádrokartonu a vnitřních obkladů a instalaci sanity.
Vlastníma rukama se Mhairi a Martin postarali také o drenáž základové desky, instalaci dřevěného obkladu, terénní úpravy a zelenou střechu. Kratší seznam tvoří práce, na které si najali řemeslníky – výkop a příprava staveniště, vylití desky, osazení oken, izolace střechy, omítky, elektronistalace a instalace fotovoltaického a solárního systému. Výsledkem šestiletého procesu pečlivého plánování, pozorného výběru materiálů a obrovského podílu ruční práce je neotřelý certifikovaný pasivní dům jednoduchého tvaru s prvky skandinávské architektury.
„Naší primární motivací byly tři věci," říká Mhairi. „Potřebovali jsme co nejnižší náklady, abychom se obešli bez hypotéky. Jako většina samostatně výdělečných osob máme variabilní příjmy, což komplikuje správu fixních nákladů, mezi něž hypotéka patří. Za druhé jsme si chtěli užít praktické stavění jako kontrast k naší každodenní projektové praxi, kdy trávíme většinu času za počítačem. A za třetí jsme se chtěli dozvědět co nejvíce o pasivních domech prostřednictvím skutečné stavby a získat tak poznatky pro budoucí navrhování pasivních domů pro naše klienty."
Vždy si udělejte malý průzkum – ať už jde o financování, nákup materiálů nebo služeb. Vždy existuje více možností a nemusíte brát to první, na co narazíte. I malé částky se počítají!
Komentář majitelky
Hodně jsme zvažovali zvolenou stavební technologii a použité materiály. Naším cílem byla redukce potřebného materiálu a více funkcí jednoho prvku. Například v přízemí jsme upustili od podlahové krytiny. Izolační materiál jsme volili s ohledem na možnou demontáž domu někdy v budoucnu – dřevovláknitou izolaci je možné vyjmout z dřevěného rámu a recyklovat nebo znovu použít.
Chtěli jsme také pracovat s materiálem, který je netoxický, vzniklý z druhotné suroviny a zlepšující hodnotu fázového posunu teplotního kmitu. Výběr neošetřených dřevěných latí pro obklad fasády vycházel z potřeby použít odolný materiál s dlouhou životností a nízkou údržbou, a především takový, který bychom mohli instalovat sami bez odborného školení.
Fotovoltaické panely na střeše o výkonu 1,5 kW stačí na provoz myčky a pračky a vyplatí se, přestože nepokrývají veškerou potřebu elektřiny v domě. Vegetační střecha zadrží asi poloviční množství dešťové vody, druhá polovina je svedena do dešťové zahrady – vyvýšeného záhonu s rostlinami, které zvládnout úplné sucho i plnou saturaci vodou.
Ne všechna okna jsou otevírací, důležité je ale myslet na letní větrání (ochlazování) a rozmístit otevírací okna tak, aby bylo možné větrat křížem. Chcete-li stavět částečně vlastními silami, nechte profesionály zhotovit vnější plášť – zbytek prací už můžete dodělávat chráněni před větrem a deštěm.

Mhairi Grant
architekt, stavitel a klient
Nejprve test, pak práce vlastníma rukama
Přestože Mhairi nabyla spoustu teoretických vědomostí o principech pasivního domu během svého studia, chtěli si s Martinem nejprve na vlastní kůži ověřit, že teorie odpovídá i realitě. Na víkend si proto pronajali pasivní dům. „Zajímala mě nejvíc ta záhadná ventilace s rekuperací tepla. Takže první věc, kterou jsme po příjezdu udělali, bylo hledání výdechových otvorů a zkoumání, zda v domě není průvan. Chovali jsme se tiše a poslouchali, jak hlučné je nucené větrání. Ověřili jsme si také, že okna se dají otevírat."
Na začátku projektu pomohlo, že jako architekti měli trochu více volného času a nejvíce prací udělali v prvních dvou letech. Martin vzpomíná, jak si vzal 12 týdnů dovolené a spolu se dvěma truhláři vyrobili nosnou sloupkovou konstrukci. Dnes odhaduje, že tak ušetřili desítky tisíc liber, přestože skutečný důvod byl jiný: „Prostě jsem tehdy nedokázal najít tesaře, který by rám zhotovil. Dnes už je situaci samozřejmě jiná – profesionálové vám postaví na místě za čtyři dny to, s čím jsme se my trápili skoro tři měsíce."
Stejně neuvěřitelně dlouhá byla i montáž dřevěného fasádního obkladu: „Tenkrát mi to ani tak nepřišlo, ale dnes mi připadá až neskutečné, že jsme si s fasádou ´hráli´ čtyři léta." Kromě velkého pracovního vytížení v té době bylo důvodem, proč obkládání trvalo tak dlouho, rozhodnutí namontovat obklad diagonálně, což je mnohem složitější než montáž vodorovná nebo svislá. Obklad je kotven na vertikální nosníky, problém ale nastal na rozích, kde se obkladové latě stýkaly bez podkladu.
„Musel jsem tedy nejprve vyrobit kovové trojúhelníky, jimiž jsem latě v místě styku spojil, a pak se tento rohový prvek instaloval jako celek. Byla to maličkost, ale časově velmi náročná," vzpomíná Martin.
Úroveň komfortu bydlení v pasivním domě předčila naše očekávání – žije se tu tak úžasně, že už nebudete chtít bydlet v jiném než pasivním domě.
Teplo z infračervených panelů
Od začátku bylo snahou použít maximální možné množství přírodních materiálů – nejen s ohledem na smýšlení stavebníků, ale také pro bezproblémovou likvidaci po morálním dožití domu. Dřevěná nosná konstrukce je z neošetřeného dřeva a spolu s opláštěním je vyrobena ze dřeva nesoucího certifikaci PEFC/FSC. Dřevovláknitá izolace je navíc pro manipulaci příjemnější než minerální vlna nebo pěnová izolace. Plochá střecha je kryta vegetační vrstvou z rozchodníků, která přispívá k biologické rozmanitosti a zlepšuje mikroklima. V průběhu stavby také Mhairi důsledně dohlížela na povahu stavebního odpadu natolik, že se celý proces obešel bez jediného kontejneru na odpad.
S předpokládanou spotřebou energie na základě výpočtů PHPP (Passive House Planning Package) si manželé byli jisti, že potřebu tepla pokryjí jednoduchým nízkovýkonným zdrojem. Místo tepelného čerpadla se rozhodli pro infračervené topné panely se záložním dohřevem ventilačním systémem. Většinu teplé užitkové vody připraví vakuované solární kolektory.
„Stále nás udivuje, kolik slunečního záření dokážou solární panely absorbovat," říká Mhairi. „Jsou velmi výkonné, dokonce i v přechodném období. Solární tepelná energie jako obnovitelná technologie je ve Skotsku zbytečně přehlížena, využívá se především pro výrobu elektřiny prostřednictví fotovoltaiky, přitom pro dům, jako je ten náš, který není vybaven tepelným čerpadlem ani elektrokotlem, má slunce jako zdroj pro přípravu teplé vody velký smysl."
Kromě sledování spotřeby elektřiny mají majitelé pod kontrolou také teplotu a vlhkost, jejichž hodnoty odečítají z řady senzorů nainstalovaných na různých místech v domě. „Zjistili jsme, že teplota v interiéru je velmi stabilní, pohybuje se kolem 20°C i v době, kdy bylo několik dnů za sebou venku pod nulou. Překvapilo nás, že rozdíl mezi teplotou u podlahy a teplotou pod hřebenem je jen několik stupňů."
Na otázku, zda by se po všech zkušenostech pustili do stavby svépomocí znovu a co by případně udělali jinak, odpovídá Martin jednoznačně: „Ničeho nelituji, i když to trvalo tak dlouho. S nabytými zkušenostmi už by samozřejmě šla stavba dnes rychleji. Jediné, co bych udělal jinak, je tvar střechy – na šikmou střechu by se vešlo více fotovoltaických panely a náš dům by se tak mohl kvalifikovat jako pasivní plus."
Technické parametry
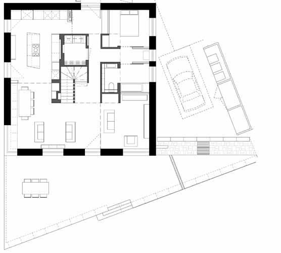
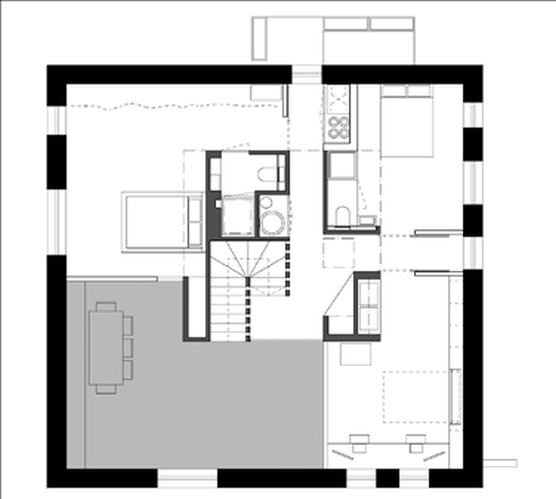
- Užitná plocha: 170 m2
- Konstrukční systém: zdvojená sloupková konstrukce, opláštění dřevovláknitými deskami na pero a drážku 42 cm, sádrokarton
- Měrná potřeba tepla: 15 kWh/m2a
- Součinitel prostupu tepla stěnou: 0,086 W/m2K
- Vytápění/větrání: infračervené topné panely 3 × 800 W + 1 × 500 W, 2 kW elektrická patrona; větrací jednotka s rekuperací tepla s účinností 91 %; fotovoltaické panely 9,9 m2 o výkonu 6 × 250 W
- Blower door test: 0,19 hod–1
- Projekt: Paper Igloo – Martin McCrae & Mhairi McCrae
- Realizace: 2020, svépomocí
- Náklady: 250 000 GBP (7 785 419 Kč)
- Foto: David Barbour (pro ročenku PASIVNÍ DOMY 2022)

ročenka PASIVNÍ domy 2022
- Návrh a stavba pasivního domu
- Technologie pasivního domu
- Projekty a realizace pasivních domů
- Zkušenosti s bydlením v pasivním domě
Objednejte si krásně vonící výtisk časopisu s kvalitními fotografiemi. Přes 200 stran informací pouze za 99 Kč
koupit časopis
Nejnovější články v kategorii “Pasivní domy”
-
České bateriové stanice HES s kapacitou až 41,1 kWh snižují díky spotovému nakupování cenu elektrické energie
Střešní solární elektrárny na rodinných domech se pomalu stávají v Česku standardem a zájem výrazně zvýšila i rostoucí cena energií. S vlastní fotovoltaikou zákazníci šetří…
-
Navštivte pasivní rodinný dům, který se testuje za provozu
O světě pasivních a nízkoenergetických rodinných domů koluje řada mýtů a polopravd. Je lepší zvolit difúzně otevřený nebo uzavřený konstrukční systém? Jaké materiály je vhodné…
-
Petr Dusil: Cílem není pouze pasivní, ale kvalitní dům
Současná doba je takovým ukazatelem naší připravenosti na změny a krize mnoha odstínů. Jak si v jejich světle stojí současné stavebnictví, v posledních letech postavené rodinné domy…
-
Radon v pasivních domech
O radonu jako život ohrožující látce se hovoří už poměrně dlouho. Tento radioaktivní plyn vzniká přeměnou uranu a radia v zemské kůře a sám se přeměňuje na další radioaktivní…
























Vytvořeno v xart.cz